Möchten Sie am Mittwoch, Sonntag oder Feiertag abreisen? Das ist auf Anfrage möglich.
Schreiben Sie uns eine E-Mail oder rufen Sie uns an! Dann passen wir Ihre Buchung entsprechend an.
Möchten Sie am Mittwoch, Sonntag oder Feiertag abreisen? Das ist auf Anfrage möglich.
Schreiben Sie uns eine E-Mail oder rufen Sie uns an! Dann passen wir Ihre Buchung entsprechend an.


























Geräumige und gemütliche Villa mit 4 Schlafzimmern, einer sonnigen Terrasse und einem Parkplatz, ausgestattet mit allem Komfort. Das Ferienhaus liegt in einer ruhigen Straße. Es ist eine echte Empfehlung für diejenigen, die einen komfortablen, ruhigen und erholsamen Urlaub in Koksijde suchen. Der Grundriss des Ferienhauses ist bei den Fotos zu finden.
Im Erdgeschoss:
Eine Eingangshalle, 1 Schlafzimmer mit einem Doppelbett, Badezimmer mit Dusche und Waschbecken und Toilette, offene ausgestattete Küche mit allem Komfort mit Zugang zur Terrasse und Garten, Wohnzimmer und geräumige Sitzecke, gemütlicher Gaskamin.
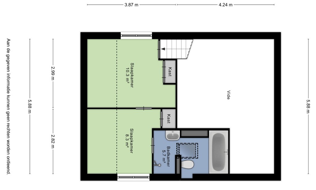
Im ersten Stock:
2 Schlafzimmer, Zimmer mit 2 Einzelbetten und Zimmer mit einem Doppelbett. Nützlich zu wissen ist, dass man durch das Schlafzimmer mit den 2 Einzelbetten gehen muss, um in das 2. Zimmer mit dem Doppelbett zu gelangen. Durch das Zimmer mit dem Doppelbett haben Sie Zugang zum 2. Badezimmer mit Badewanne, Dusche, Waschbecken und Toilette.
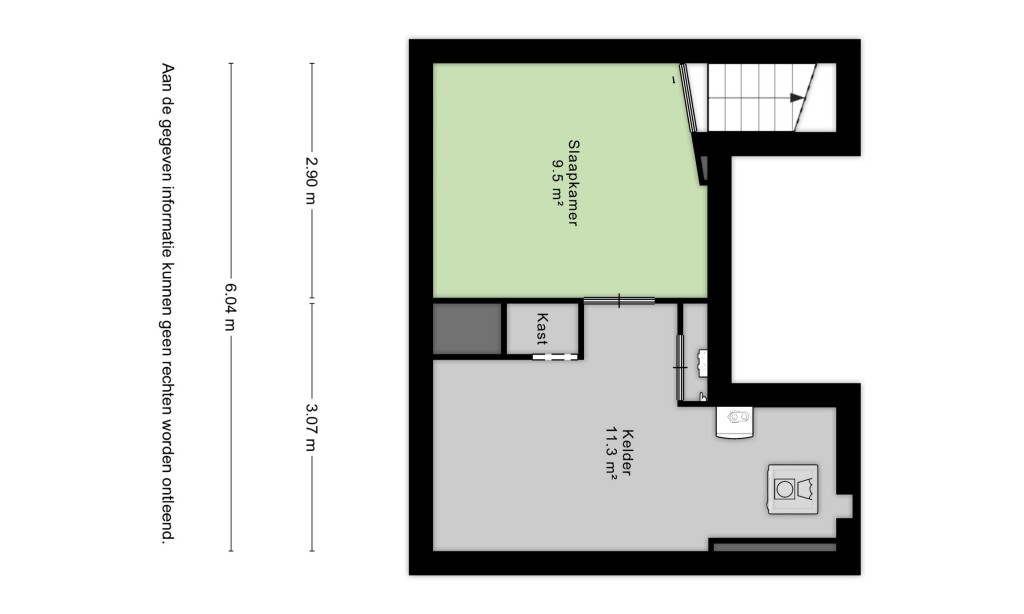
Im Keller:
Ein fensterloses Schlafzimmer mit einem Etagenbett. Durch diesen Raum haben Sie Zugang zum Abstellraum mit Kühlschrank mit Gefrierfach (3 Schubladen), Waschmaschine, Trockner und anderen Reinigungsgeräten.
Diese Website verwendet Cookies, um Ihnen ein bestmögliches Benutzererlebnis zu bieten. Wenn Sie ändern möchten, welche Cookies wir verwenden können, ändern Sie die Cookie-Einstellungen. Weitere Informationen zur Verwendung von Cookies finden Sie in unserer privacy-Richtlinie.